






























Year: 2012
Condition: Used
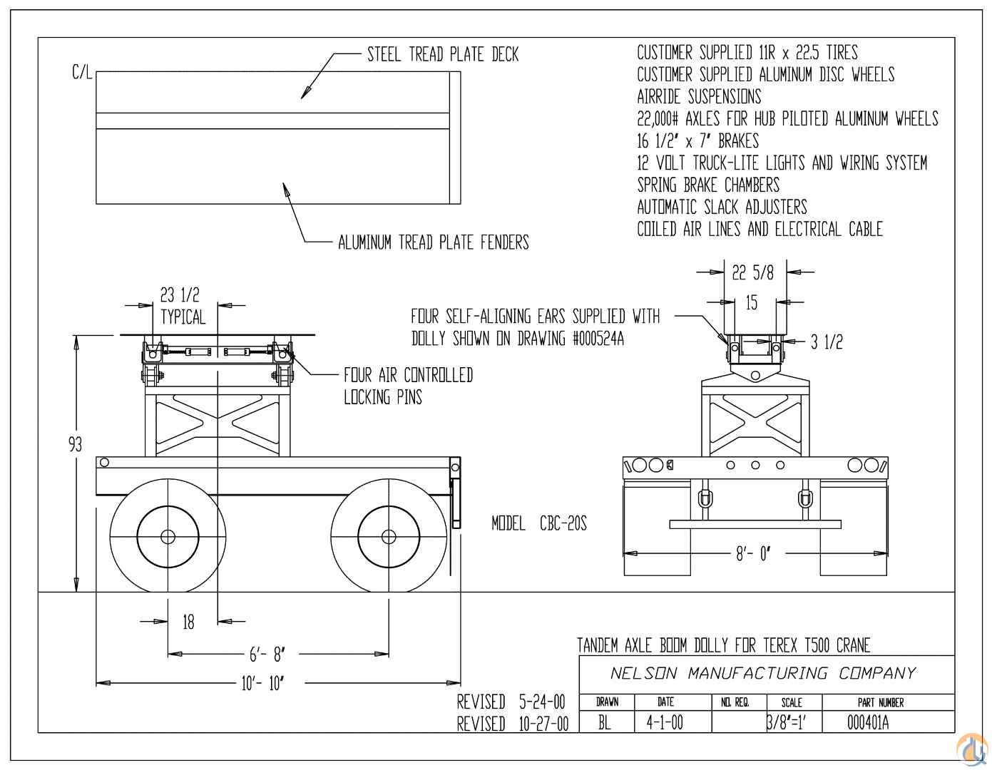
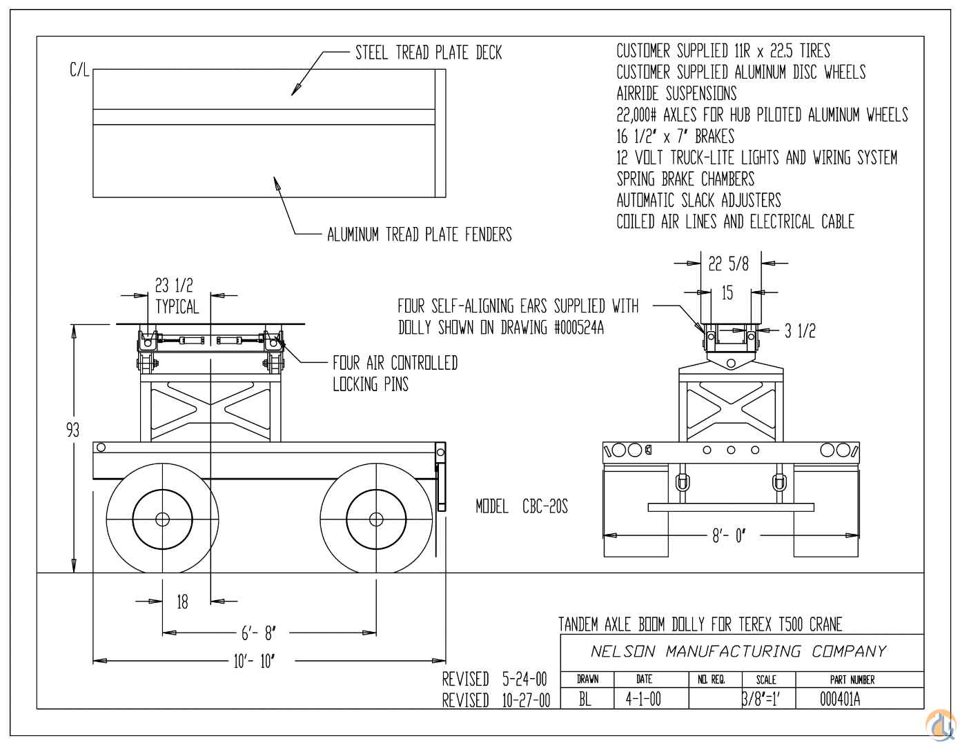
Unit #: C2415
Part #: CBC-20S
Location: Solon, Ohio
NELSON BOOM DOLLY
• 2-axles
• TIRES 11R X 22.5
• RIMS 8.25 x 22.5
• FITS TO: Terex T780 (call for additional models)
Contact Exact Crane for additional information and any questions.
Multiple boom dollies in stock, call with specific requests.
Sales Dept: 440-349-1999
Alt Phone: 888-635-5636
Fax: 440-349-7099
Solon, OH 44139, United States