




Capacity: 20
Condition: Excellent
Location: Portsmouth, Virginia
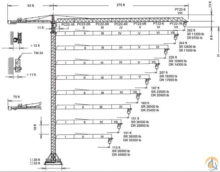
Top Line Tower Crane with heavy load capacity which stand out for their simple assembly, maintenance and handling.
Equipped with high power and speed mechanisms, with advanced electrical and safety systems, these cranes are used for lifting heavy loads, mostly in construction with prefabricated blocks, metallic structures, etc. as well as for warehouse applications, maintenance of heavy equipment, construction of dams, special bridges.
Crane Tech Solutions (CTS) is the exclusive distributor for JASO Tower Cranes for USA and its territories.
The CTS team proudly brings decades of tower crane sales, parts and service experience to the JASO line of Luffing Tower Cranes as well as Hammer Head Tower Cranes. JASO Tower Cranes is a European manufacture that prides itself on quality, after sales support and supplying “The best valued cranes on the market”. Having supplied over 10,000 tower cranes in over 60 countries and having its own rental fleet of over 500 cranes, JASO along with CTS knows what it takes to be a leader in the tower crane industry.