


































Capacity: 425
Condition: Excellent
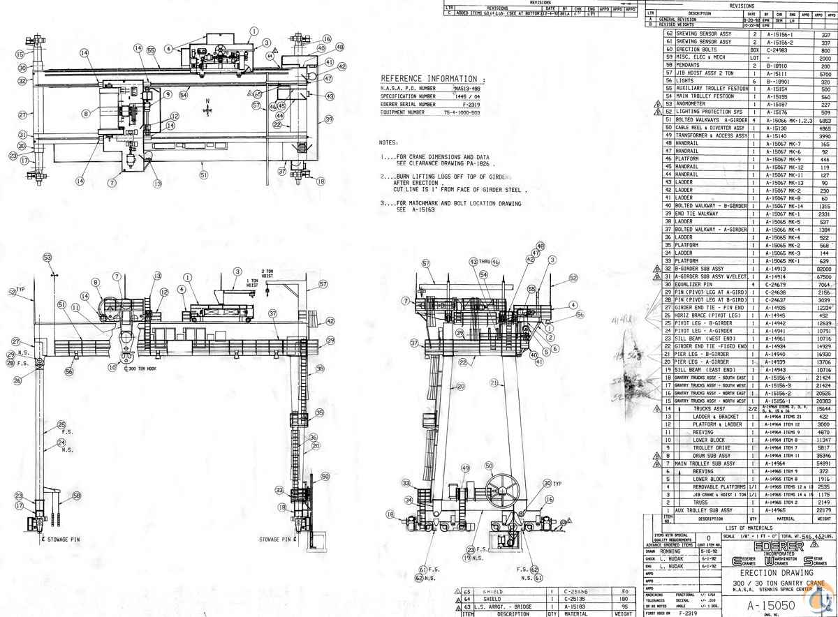
Location: Louisiana
Location...New Orleans, Louisiana. This rail-mounted gantry crane was tested to 425 tons. Built but never used, Disassembled and ready to ship, Purchased New for $3.8 million.
SOLD
Sales Dept: 504-606-2312
Alt Phone: 504-340-3175
Fax: 504-348-4087
LA, United States